- 横浜市トップページ
- ビジネス
- 中小企業支援
- 商業振興
- 商店街に向けた支援
- 商店街空き店舗に関する支援(商店街向け)
- 市内空き店舗(物件別の詳細情報)
- 登録店舗NO.05008(港南区野庭町)
ここから本文です。
登録店舗NO.05008(港南区野庭町)
最終更新日 2024年2月22日
店舗詳細1
- 最寄駅:市営地下鉄ブルーライン「上永谷駅」より、バス8分
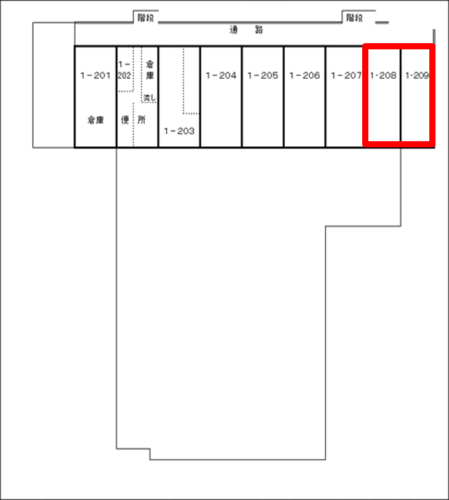
- 所在地:港南区野庭町611番地 1-208、209区画
- 店舗面積:117.60平米
- 建築年:1973年
- 賃料:165,000円(税込)
- 管理費:なし
- 共益費:賃料に含む
- 敷金・礼金:900,000円(税別)
- 保証金等:なし
- 希望業種:事務所・塾
- 物件の分類:既存店舗
- 問合せ先:横浜市住宅供給公社(電話:045-451-7780、FAX045-451-7769、Email:yuki-oota@yokohama-kousya.or.jp)
店舗詳細2
- 建物構造:SRC
- 階数:9階建の2階
店舗図面
店舗外観
商店街詳細
- 商店街名:野庭団地ショッピングセンター センター会
- 店舗数:25店舗
- 会費:1,000円/月(入会金1,000円)
このページへのお問合せ
経済局市民経済労働部商業振興課
電話:045-671-3488
電話:045-671-3488
ファクス:045-664-9533
メールアドレス:ke-syogyo@city.yokohama.lg.jp
ページID:759-377-265





