MulitilingualPage

Machine Translation

閉じる

ここから本文です。

地形地物の見直し等による変更を行った箇所

最終更新日 2019年2月1日

市街化調整区域から市街化区域に編入することによる用途地域等の変更

市街化調整区域から市街化区域に編入することによる用途地域等の変更
番号地区名
101緑区長津田町(画像:239KB)
102港北区小机町、港北区鳥山町(画像:201KB)
103旭区上白根町(画像:212KB)
104神奈川区羽沢町(画像:189KB)
105泉区新橋町(画像:217KB)
106泉区中田町(画像:183KB)
107泉区上飯田町(画像:184KB)
108戸塚区深谷町(画像:192KB)
109戸塚区汲沢町(画像:236KB)
110保土ケ谷区川島町(画像:221KB)
111瀬谷区下瀬谷一丁目(画像:191KB)
112青葉区しらとり台(画像:198KB)
113保土ケ谷区川島町(画像:227KB)
114瀬谷区南瀬谷二丁目、瀬谷区下瀬谷一丁目、泉区上飯田町(画像:187KB)
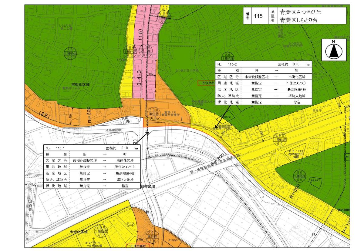
115青葉区さつきが丘、青葉区しらとり台(画像:227KB)
116戸塚区俣野町(画像:212KB)
117戸塚区俣野町(画像:211KB)
118戸塚区俣野町(画像:209KB)
119緑区三保町(画像:211KB)
120緑区三保町(画像:211KB)
121泉区新橋町(画像:213KB)
122青葉区恩田町(画像:195KB)
123青葉区恩田町(画像:217KB)
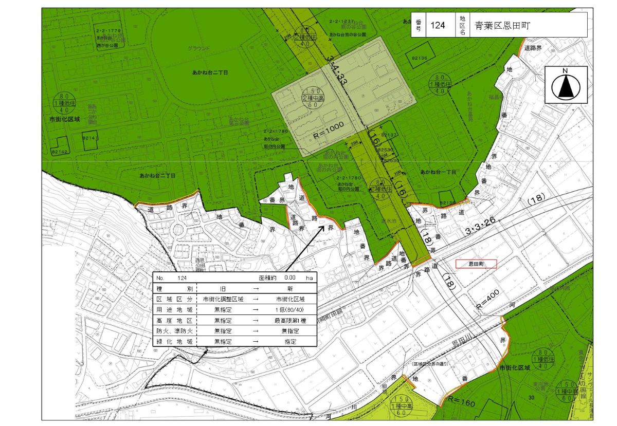
124青葉区恩田町(画像:222KB)
125青葉区恩田町(画像:230KB)
126青葉区恩田町(画像:228KB)
127青葉区恩田町(画像:230KB)
128青葉区恩田町(画像:217KB)
129青葉区恩田町(画像:223KB)
130青葉区奈良町(画像:211KB)
131青葉区奈良町(画像:211KB)
132都筑区東山田町、港北区高田西五丁目(画像:214KB)
133港北区高田町(画像:202KB)
134緑区長津田町(画像:242KB)
135緑区十日市場町(画像:235KB)
136都筑区川和町(画像:207KB)
137旭区上川井町(画像:217KB)
138旭区川井宿町(画像:180KB)
139旭区中白根三丁目(画像:172KB)
140神奈川区菅田町(画像:206KB)
141神奈川区神大寺四丁目(画像:223KB)
142瀬谷区本郷三丁目(画像:173KB)
143旭区今宿一丁目(画像:208KB)
144保土ケ谷区川島町(画像:234KB)
145瀬谷区本郷三丁目(画像:178KB)
146旭区西川島町(画像:236KB)
147旭区西川島町(画像:235KB)
148保土ケ谷区仏向町(画像:221KB)
149保土ケ谷区仏向町(画像:220KB)
150戸塚区名瀬町(画像:182KB)
151泉区中田北三丁目(画像:184KB)
152戸塚区平戸町(画像:231KB)
153泉区岡津町(画像:210KB)
154戸塚区舞岡町(画像:201KB)
155泉区和泉町(画像:197KB)
156港南区野庭町(画像:209KB)
157戸塚区小雀町(画像:224KB)
158緑区長津田町(画像:236KB)
159栄区公田町(画像:228KB)
160栄区公田町(画像:220KB)
161栄区公田町(画像:195KB)
162栄区公田町(画像:208KB)
163青葉区美しが丘西三丁目、青葉区元石川町(画像:196KB)
164青葉区鉄町(画像:188KB)
165青葉区元石川町、青葉区荏子田一丁目(画像:212KB)
166青葉区たちばな台一丁目(画像:215KB)
167青葉区たちばな台一丁目(画像:211KB)
168戸塚区平戸町(画像:233KB)
169緑区長津田町、緑区長津田みなみ台一丁目(画像:227KB)
170青葉区恩田町(画像:206KB)
171緑区十日市場町(画像:236KB)
172都筑区佐江戸町(画像:222KB)
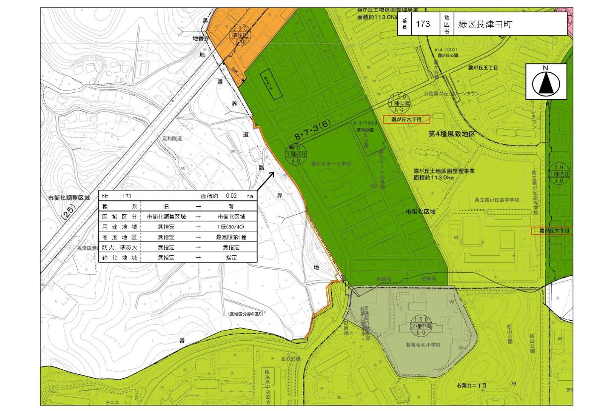
173緑区長津田町(画像:200KB)
174戸塚区名瀬町(画像:198KB)
175戸塚区舞岡町(画像:227KB)
176保土ケ谷区境木本町、保土ケ谷区境木町(画像:224KB)
177都筑区佐江戸町(画像:218KB)
178都筑区佐江戸町(画像:224KB)
179保土ケ谷区上菅田町(画像:200KB)
180栄区公田町(画像:207KB)
181神奈川区菅田町(画像:222KB)
182戸塚区品濃町(画像:237KB)
183都筑区佐江戸町(画像:223KB)
184都筑区佐江戸町(画像:226KB)
185戸塚区品濃町(画像:241KB)
186瀬谷区阿久和南四丁目(画像:227KB)
187戸塚区平戸町(画像:228KB)
188保土ケ谷区川島町(画像:219KB)

市街化区域から市街化調整区域に編入することによる用途地域等の変更

市街化区域から市街化調整区域に編入することによる用途地域等の変更
番号地区名
201緑区長津田町(画像:241KB)
202緑区北八朔町(画像:199KB)
203瀬谷区上瀬谷町(画像:163KB)
204戸塚区深谷町(画像:194KB)
205都筑区大熊町(画像:186KB)
206保土ケ谷区川島町(画像:223KB)
207保土ケ谷区川島町(画像:227KB)
208保土ケ谷区川島町(画像:226KB)
209旭区市沢町(画像:211KB)
210瀬谷区下瀬谷一丁目(画像:190KB)
211泉区弥生台、泉区和泉町(画像:223KB)
212泉区新橋町(画像:211KB)
213保土ケ谷区川島町(画像:228KB)
214戸塚区俣野町(画像:210KB)
215金沢区柴町(画像:189KB)
216金沢区柴町(画像:181KB)
217金沢区柴町(画像:200KB)
218泉区岡津町(画像:200KB)
219保土ケ谷区峰沢町(画像:236KB)
220青葉区奈良町(画像:145KB)
221青葉区奈良町(画像:184KB)
222旭区上白根町、緑区台村町(画像:203KB)
223栄区田谷町(画像:242KB)
224旭区今宿一丁目(画像:212KB)
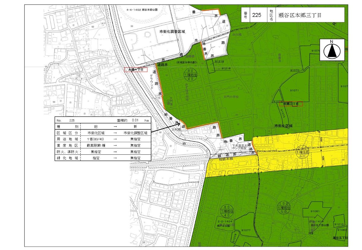
225瀬谷区本郷三丁目(画像:178KB)
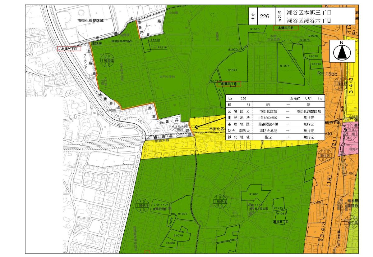
226瀬谷区本郷三丁目、瀬谷区瀬谷六丁目(画像:199KB)
227保土ケ谷区川島町(画像:238KB)
228保土ケ谷区川島町(画像:225KB)
229保土ケ谷区川島町(画像:215KB)
230戸塚区名瀬町(画像:181KB)
231保土ケ谷区狩場町(画像:256KB)
232戸塚区汲沢四丁目(画像:218KB)
233戸塚区上倉田町(画像:199KB)
234神奈川区菅田町(画像:219KB)
235戸塚区吉田町(画像:212KB)
236戸塚区舞岡町、戸塚区南舞岡一丁目(画像:198KB)
237栄区小山台一丁目(画像:245KB)
238戸塚区小雀町(画像:224KB)
239栄区公田町(画像:227KB)
240栄区公田町(画像:214KB)
241栄区公田町(画像:191KB)
242栄区公田町(画像:197KB)
243栄区公田町(画像:188KB)
244栄区公田町(画像:184KB)
245栄区東上郷町(画像:217KB)
246栄区庄戸五丁目(画像:202KB)
247金沢区釜利谷西四丁目(画像:204KB)
248青葉区寺家町(画像:209KB)
249神奈川区羽沢町(画像:214KB)
250神奈川区羽沢町(画像:219KB)
251緑区長津田町(画像:224KB)
252緑区長津田町(画像:226KB)
253保土ケ谷区新井町(画像:237KB)
254泉区新橋町(画像:209KB)
255戸塚区平戸町(画像:231KB)
256緑区寺山町(画像:191KB)
257緑区寺山町(画像:193KB)
258神奈川区菅田町(画像:238KB)
259旭区今宿一丁目(画像:212KB)
260戸塚区平戸町(画像:219KB)
261泉区岡津町(画像:214KB)
262戸塚区平戸町(画像:229KB)
263都筑区佐江戸町(画像:220KB)
264都筑区佐江戸町(画像:231KB)
265栄区田谷町(画像:245KB)

その他の変更

その他の変更
番号地区名
501旭区若葉台四丁目、旭区上川井町、緑区長津田町(画像:194KB)
502緑区霧が丘六丁目、旭区若葉台四丁目、緑区長津田町(画像:186KB)
503緑区三保町(画像:179KB)
504緑区寺山町(画像:192KB)
505緑区寺山町(画像:185KB)
506青葉区奈良町(画像:218KB)
507青葉区奈良町(画像:206KB)
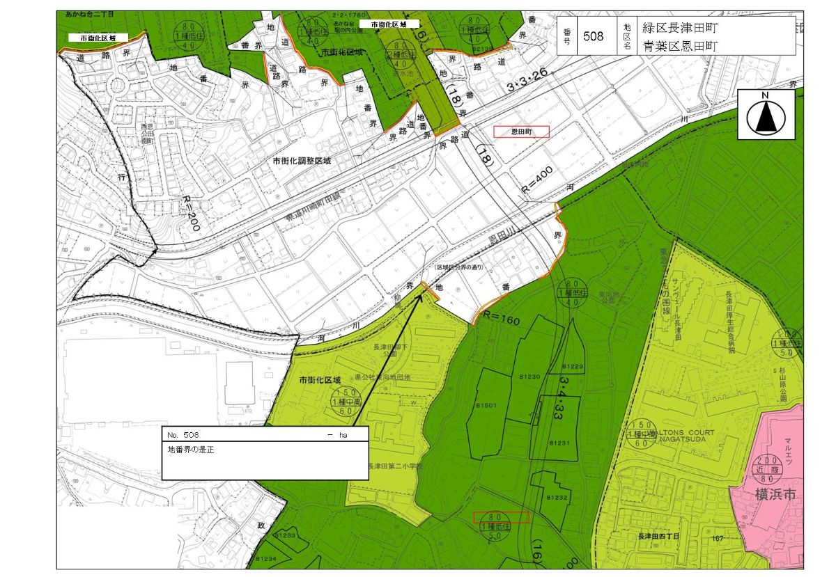
508緑区長津田町、青葉区恩田町(画像:219KB)
509緑区長津田町(画像:217KB)
510緑区長津田町、青葉区恩田町(画像:220KB)
511緑区長津田町(画像:231KB)
512緑区三保町(画像:205KB)
513青葉区奈良町(画像:212KB)
514青葉区奈良町(画像:215KB)
515港北区下田町五丁目(画像:218KB)
516栄区本郷台五丁目(画像:244KB)
517神奈川区三枚町(画像:223KB)
518瀬谷区本郷一丁目(画像:179KB)
519瀬谷区本郷三丁目(画像:184KB)
520瀬谷区相沢五丁目(画像:189KB)
521旭区金が谷二丁目、旭区金が谷(画像:204KB)
522旭区今宿一丁目(画像:209KB)
523旭区今宿一丁目(画像:202KB)
524旭区今川町(画像:207KB)
525旭区今川町(画像:209KB)
526旭区桐が作、旭区左近山(画像:227KB)
527旭区大池町、戸塚区名瀬町、泉区緑園七丁目(画像:178KB)
528泉区和泉町(画像:179KB)
529戸塚区品濃町(画像:235KB)
530戸塚区品濃町(画像:235KB)
531戸塚区品濃町(画像:220KB)
532泉区上飯田町(画像:186KB)
533泉区上飯田町(画像:192KB)
534戸塚区平戸町(画像:207KB)
535戸塚区平戸町(画像:223KB)
536戸塚区平戸町(画像:227KB)
537戸塚区平戸町(画像:220KB)
538戸塚区平戸町(画像:227KB)
539戸塚区平戸町(画像:226KB)
540戸塚区平戸町(画像:225KB)
541戸塚区平戸町(画像:225KB)
542戸塚区汲沢町(画像:217KB)
543戸塚区汲沢町(画像:201KB)
544戸塚区深谷町(画像:206KB)
545戸塚区原宿一丁目(画像:209KB)
546戸塚区原宿二丁目、戸塚区小雀町(画像:217KB)
547神奈川区三枚町、神奈川区菅田町(画像:218KB)
548神奈川区羽沢町(画像:200KB)
549栄区小山台一丁目、栄区小菅ケ谷四丁目(画像:241KB)
550栄区公田町(画像:220KB)
551栄区公田町(画像:202KB)
552栄区公田町(画像:204KB)
553栄区公田町(画像:213KB)
554神奈川区羽沢町(画像:213KB)
555戸塚区南舞岡三丁目(画像:195KB)
556港北区高田西四丁目(画像:194KB)
557港北区高田西四丁目(画像:200KB)
558神奈川区菅田町(画像:224KB)
559栄区東上郷町、栄区上郷町(画像:215KB)
560栄区公田町(画像:200KB)
561神奈川区羽沢町(画像:195KB)
562神奈川区羽沢町(画像:186KB)
563神奈川区羽沢町(画像:200KB)
564神奈川区羽沢町(画像:210KB)
565神奈川区羽沢町(画像:226KB)
566神奈川区羽沢町(画像:231KB)
567神奈川区羽沢町(画像:227KB)
568青葉区荏子田一丁目、青葉区元石川町(画像:198KB)
569戸塚区品濃町(画像:232KB)
570青葉区奈良町(画像:209KB)
571金沢区柴町、金沢区西柴四丁目(画像:174KB)
572戸塚区舞岡町、港南区日限山一丁目(画像:214KB)
573青葉区奈良町(画像:171KB)
574栄区公田町(画像:199KB)
575戸塚区平戸町(画像:224KB)
576青葉区美しが丘西三丁目、青葉区元石川町(画像:199KB)
577都筑区佐江戸町(画像:213KB)
578都筑区佐江戸町(画像:214KB)
579都筑区佐江戸町(画像:215KB)
580都筑区佐江戸町(画像:227KB)
581栄区公田町(画像:210KB)
582緑区鴨居一丁目(画像:217KB)
583戸塚区東俣野町(画像:189KB)

このページへのお問合せ

都市整備局企画部都市計画課

電話:045-671-2657

電話:045-671-2657

ファクス:045-550-4913

メールアドレス:tb-toshikeikaku@city.yokohama.lg.jp

前のページに戻る

ページID:874-414-416

  • LINE
  • Twitter
  • Facebook
  • Instagram
  • YouTube
  • SmartNews